AN AFFORDABLE MODEL FOR SOUTH FACING YARDS
3 Court House
Location
Gladesville, Sydney
Completion
2007
Type
Residential
Traditional Custodians
Wallumedegal
Our brief for the project was the renovation of a small dwelling in Gladesville for an older couple moving to Sydney to retire close to their children and grand children.
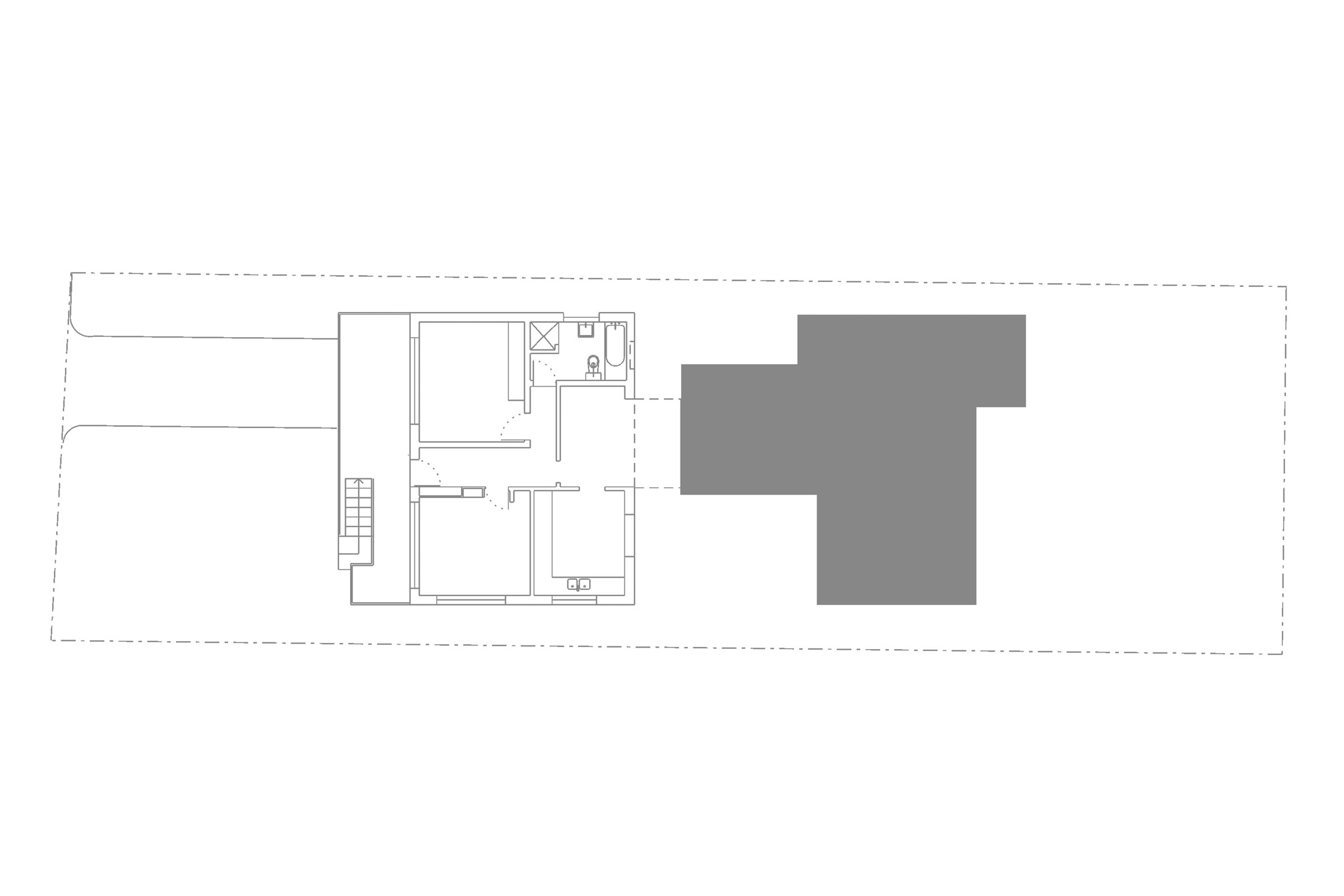
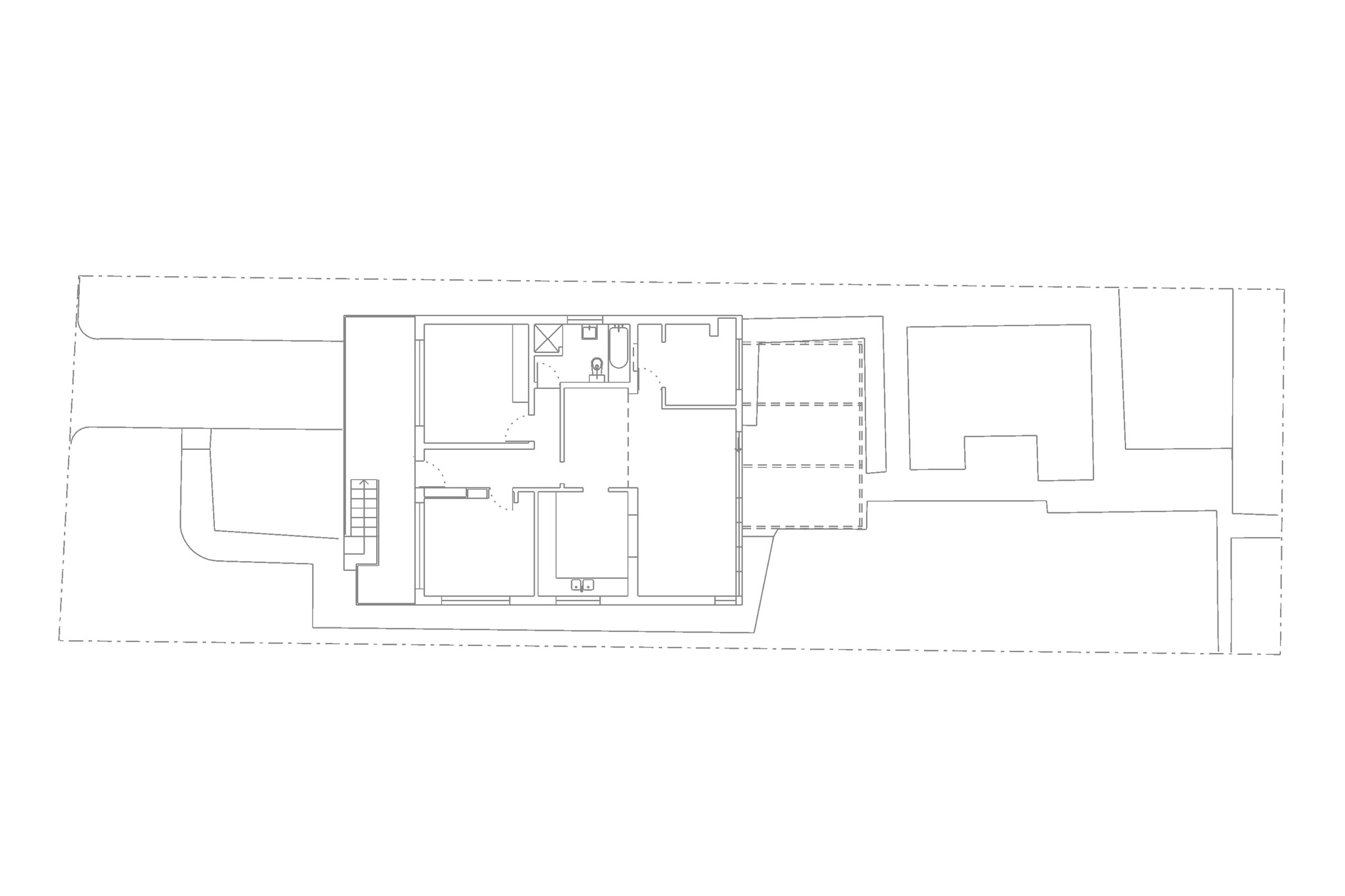
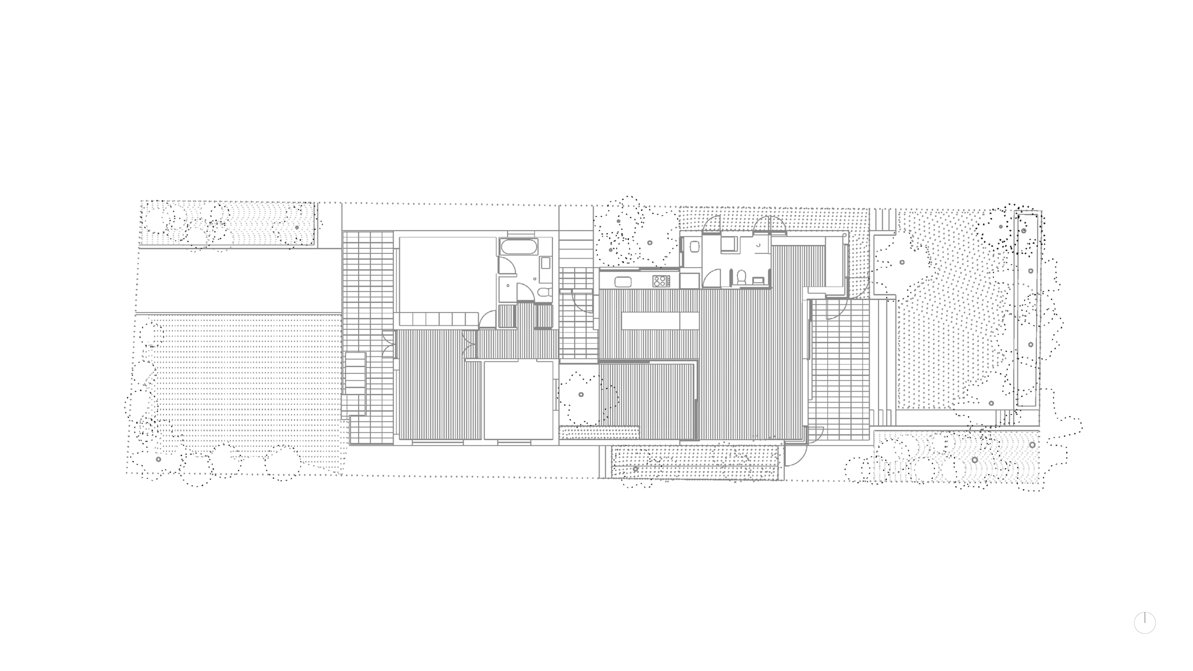
Our approach to the brief was to create a hybrid between a courtyard house and a project home – combining the modesty of form and simplicity of construction methods of mass produced affordable housing with a more complex courtyard floor plan that introduces north sun into the rear, private spaces of the house.
The carefully constructed figure of the new floor plan shapes three distinct courtyard exterior spaces that allow both a better connection between interior and garden, as well as allowing the house to expand and contract in size according to its occupancy by the couple on their own or with visits from their large family.
Credits
Team
Andrew Burges, Celia Carroll, Josh Henderson
Builder
Dean Brown Construction
Photography
Brett Boardman



















