DESIGN BY SUBTRACTION
Albert Street
Location
Leichhardt, Sydney
Completion
2018
Type
Residential
Traditional Custodians
Wangal and Gadigal
The brief for this warehouse renovation was to create a simple liveable plan for a couple and their art collection. The interior was remodelled open the full experience of the tall and long sawtooth warehouse space, considering the fall of natural light deep within the interior. Important to the brief was the creation of a contained, central, outdoor pool, defined by a vivid blue reminiscent of our client's time on another remote coastline.
Original Interior and Layout
The existing interior had a number of poor 1980’s additions that cluttered the space with misplaced stairs, kitchen, and other utilities, within an otherwise generous volume. Our concept was to re-create the warehouse interior through design by subtraction, removing the extraneous elements to create a clear, open interior built around a centrally located pool, reflecting light deep into the interior.
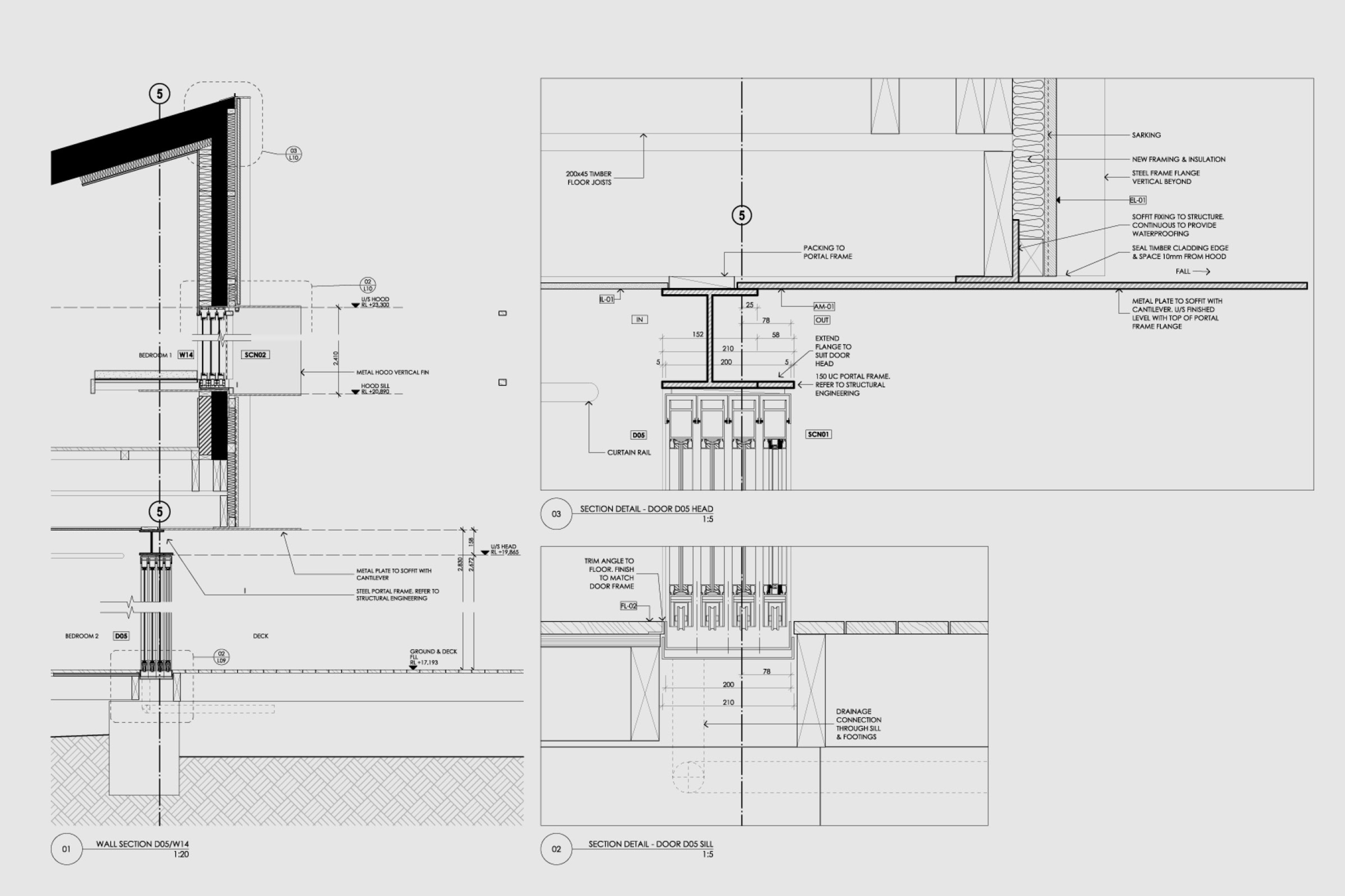
The detailing of the project focussed on the thresholds into the central courtyard space, creating seamless connections between the courtyard and interior through resolution and integration of the steel structure with door and window heads and sills.
The material character of the warehouse renovation focused on a simple palette that emphasised the inherent qualities of the original sawtooth envelope. The floor was reconstructed as a fresh concrete slab, and the walls white painted brick, while new elements focused on creating subtle plays of light and tactility within the warehouse interior.
Credits
Team
Andrew Burges, Min Dark, Cameron Deynzer, Peter Maxwell, Peter Ewald-Rice, Charles Choi
Builder
Technique Build
Photography
Katherine Lu



















