REMAKING LIVING IN A MODERNIST ICON
Coastview Apartment
Location
Vauclause, Sydney
Completion
2020
Type
Residential
Traditional Custodians
Birrabirragal
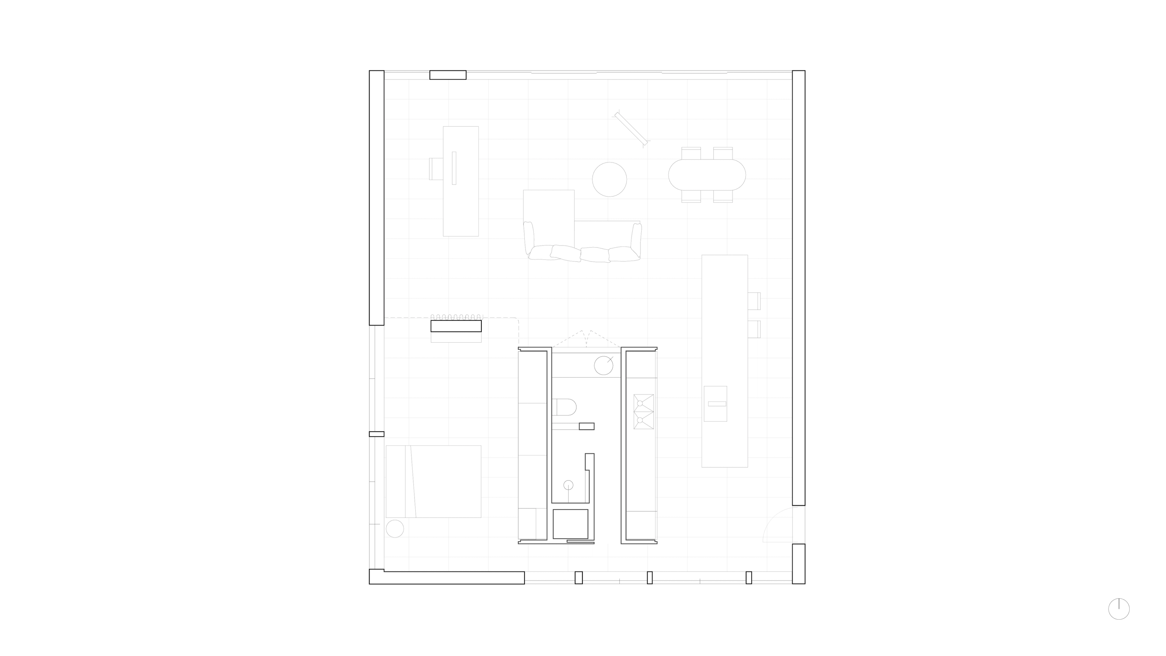
Designed in the early 1960’s, Coastview Apartments is a modernist tower sitting precariously on the cliff edge at Diamond Bay. Our brief was to remove the many layers of unsympathetic additions and open up the once three bedroom corner unit to conceive a space for single occupancy. To do so we began experimenting with elemental forms, placing objects within the floorplate, each bringing utility to the plan.
Original Layout
Our proposal removed walls and rooms to create one coherent space with a central, elemental core housing the bathroom, kitchen storage, and robe. This transition from a rooms-based plan to a more modernist open plan allowed all the spaces of the apartment to experience the immediacy of the sheer ocean cliffs, water, and horizon.
The single core element contained and concealed existing services running vertically within the tower building.
With the tight scale of the core we explored miniaturisation as a theme, dimensioning passages and thresholds to their absolute minimum, creating a micro-world of contained interior spaces as a contrast to the open and generous spatial experience of the main apartment interior.
Material selection was purposefully limited. An emerald, smeraldo slab was chosen for the desk and vanity, the movement of the veins echoing the churning whitewash below. The expansive black island bench brings a depth and grounding to the space, in contrast to the lightness and texture of oak cabinetry. Curtains offer a softness, to counter the intensity of the northeast light and allow the bedroom to be closed or open to the public realm.
Credits
Team
Andrew Burges, Camilla Phillips, Min Dark, Eric Ye, Charles Choi
Builder
Robert Plumb Build
Photography
Hamish McIntosh




















