BETWEEN TOWER AND COURT - FRAMING THE CITY
Garden Courtyard House
Location
Rose Bay, Sydney
Completion
2016
Type
Residential
Traditional Custodians
Gadigal
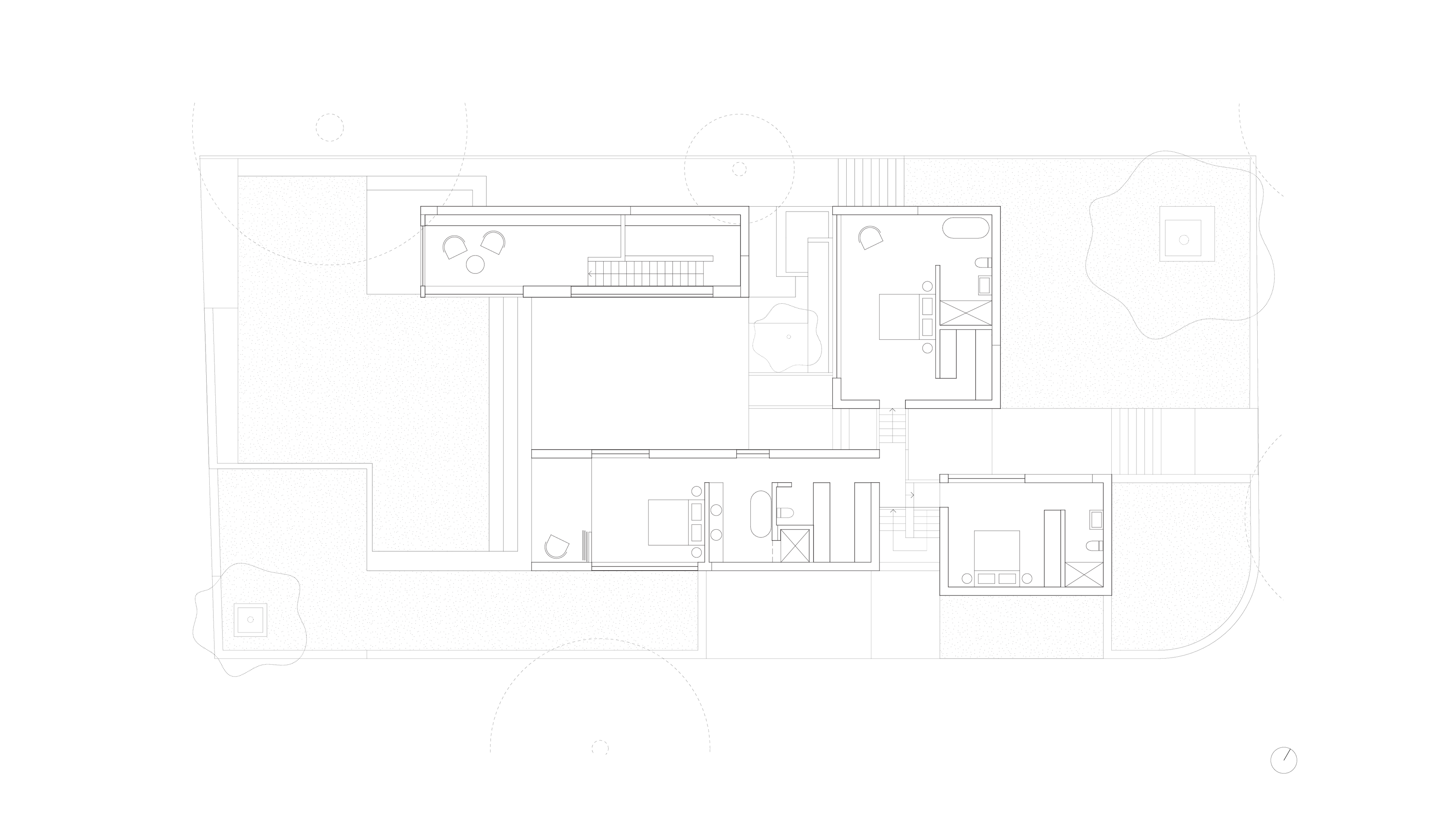
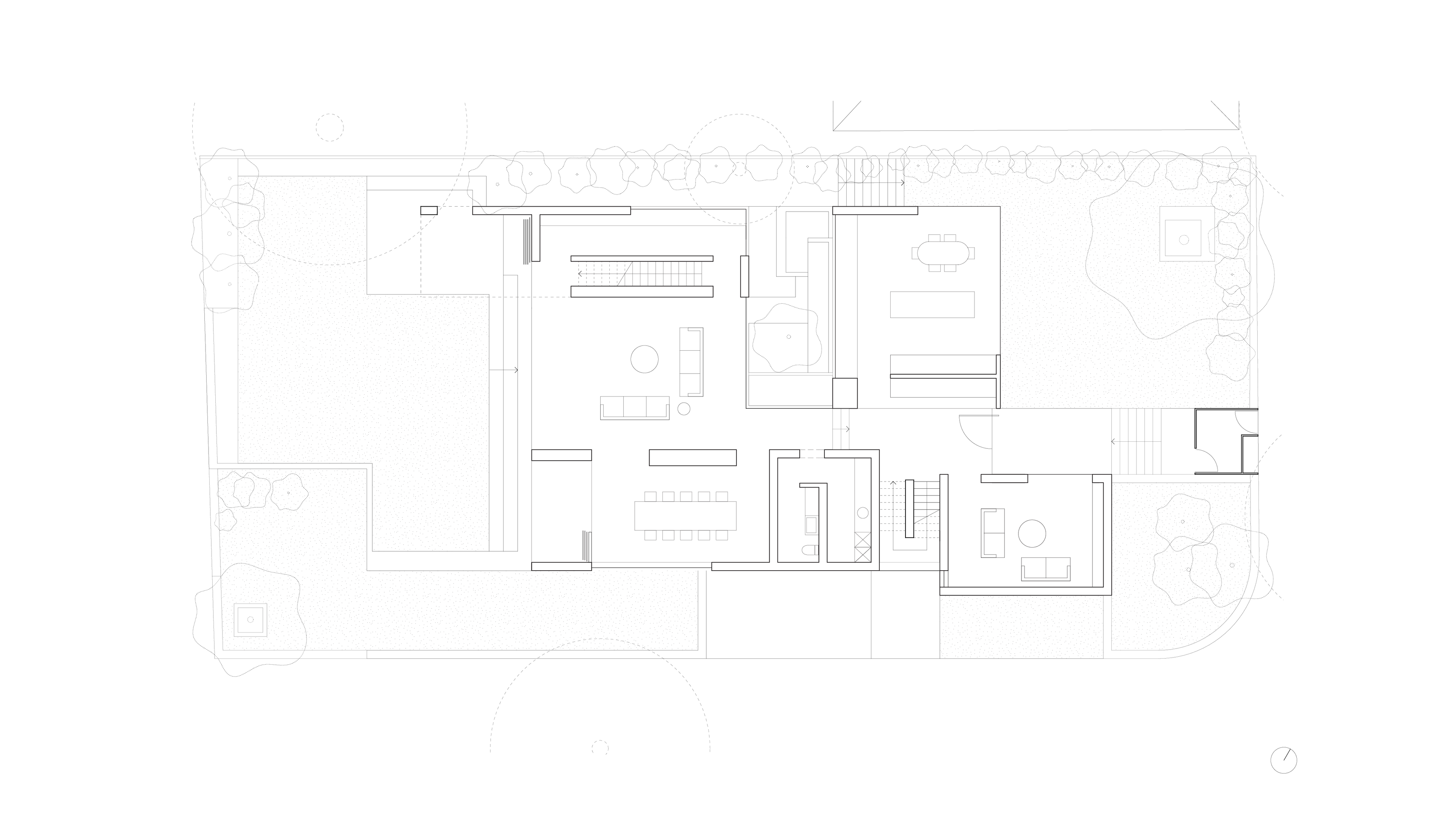
Situated on a sloping site with direct views to the west overlooking the Opera House and Harbour Bridge, we conceptualised the house as four towers whose separation and varied heights created view corridors allowing every room to have north sun and views overlooking the Harbour. Located between the towers on the lower level was the main living area, designed as an indoor/outdoor terrace integrating with 2 garden courtyards. On the upper level, the space between the towers is dedicated to a private rooftop garden located centrally between the towers.
Credits
Team
Andrew Burges, Chris Mullaney, Min Dark, Eric Ye








