BETWEEN THE RATIONAL AND THE ORGANIC
Huntley Street Learning Centre
Location
Alexandria, Sydney
Completion
2019
Type
Public
Traditional Custodians
Gadigal
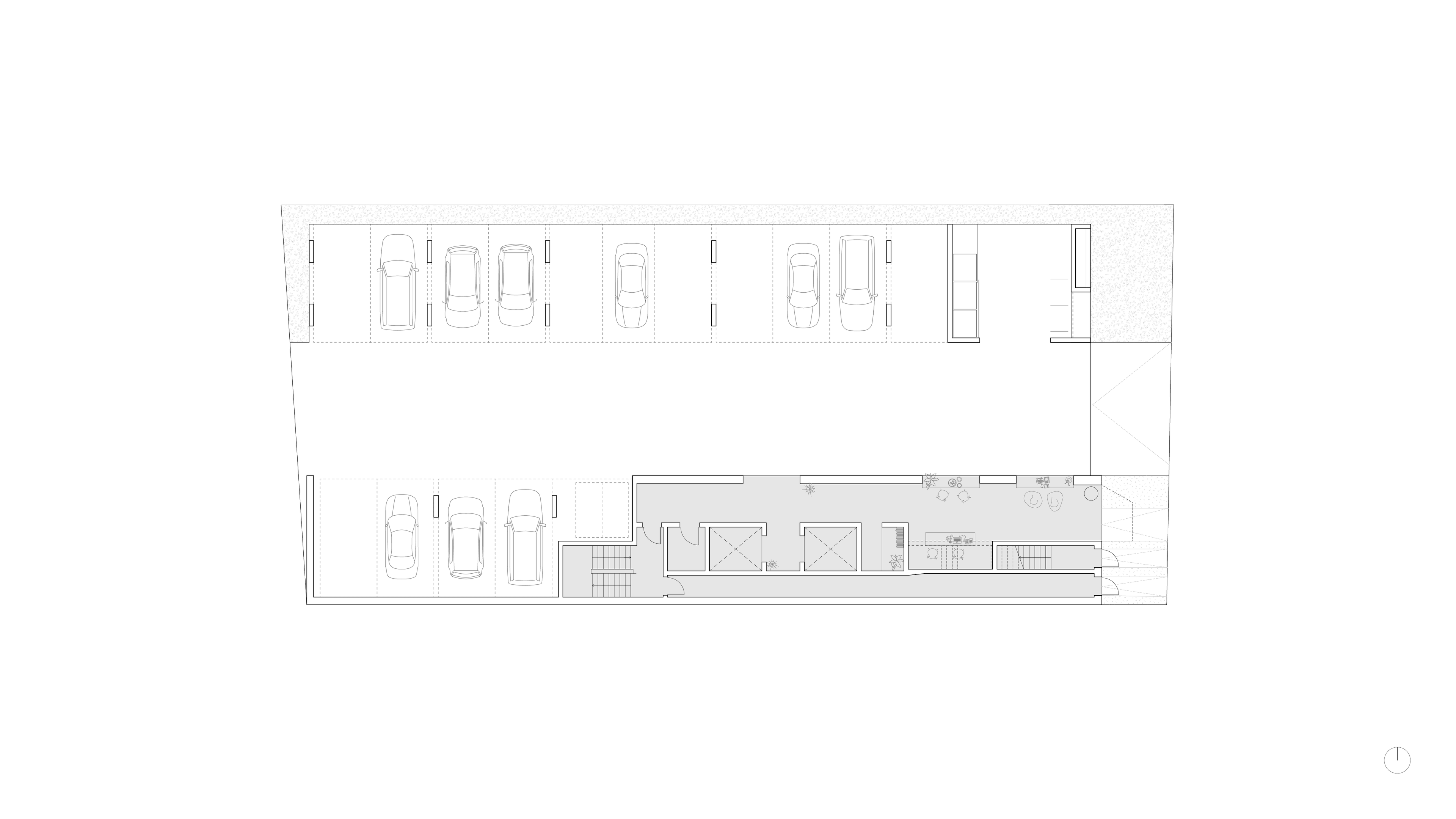
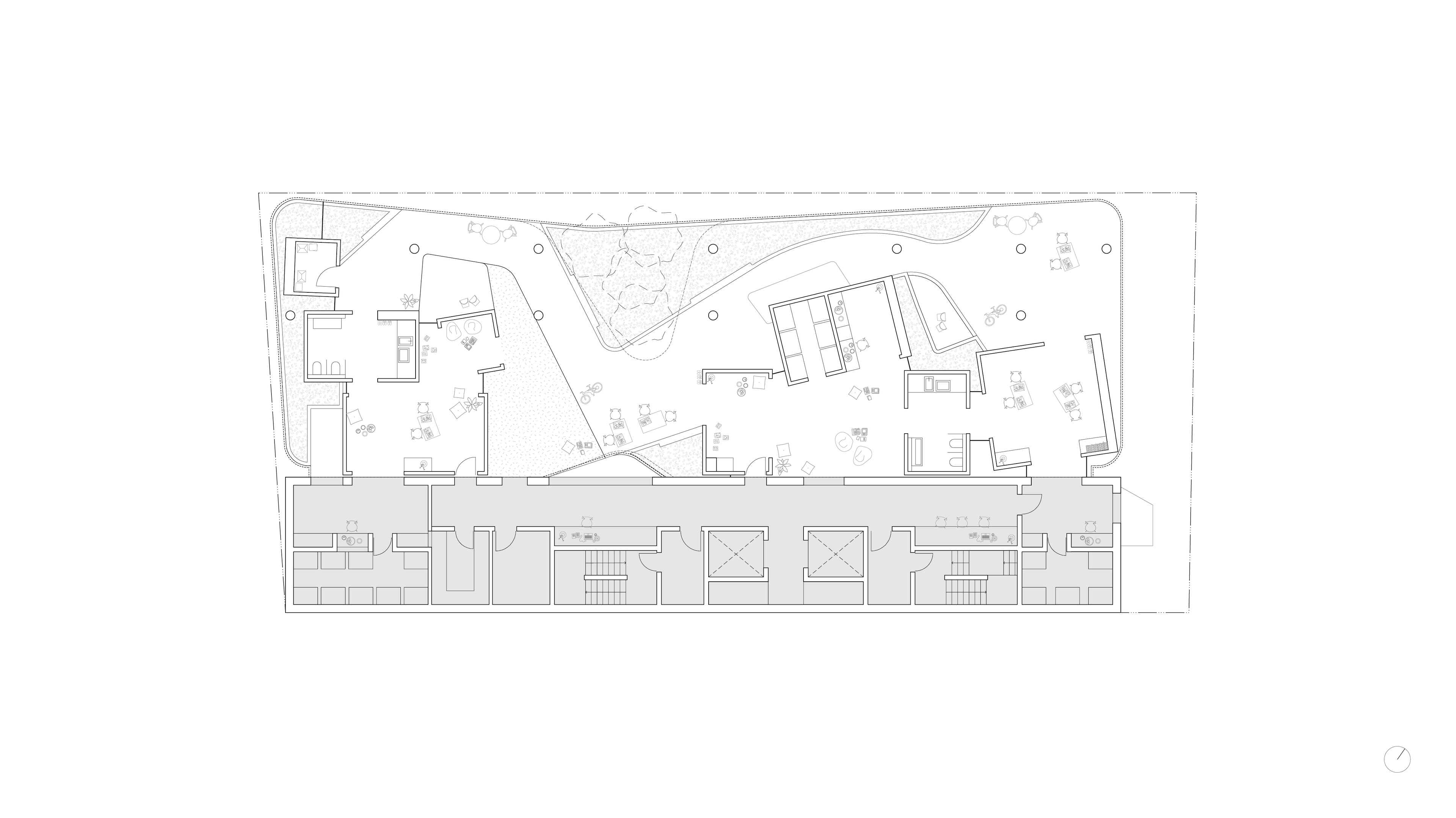
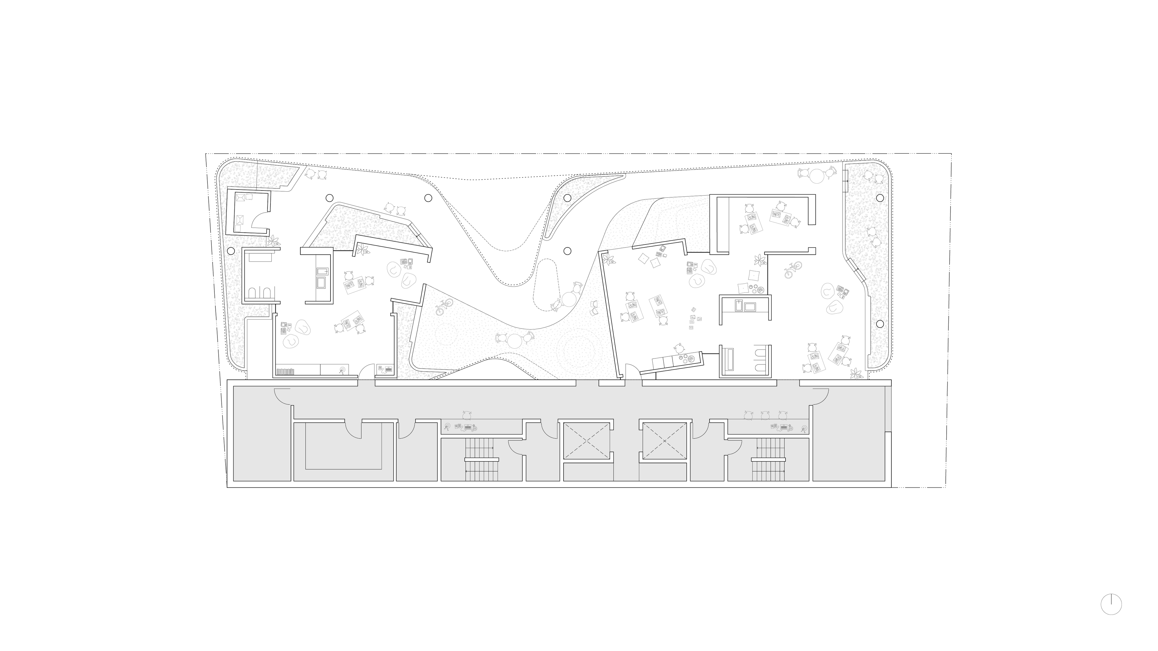
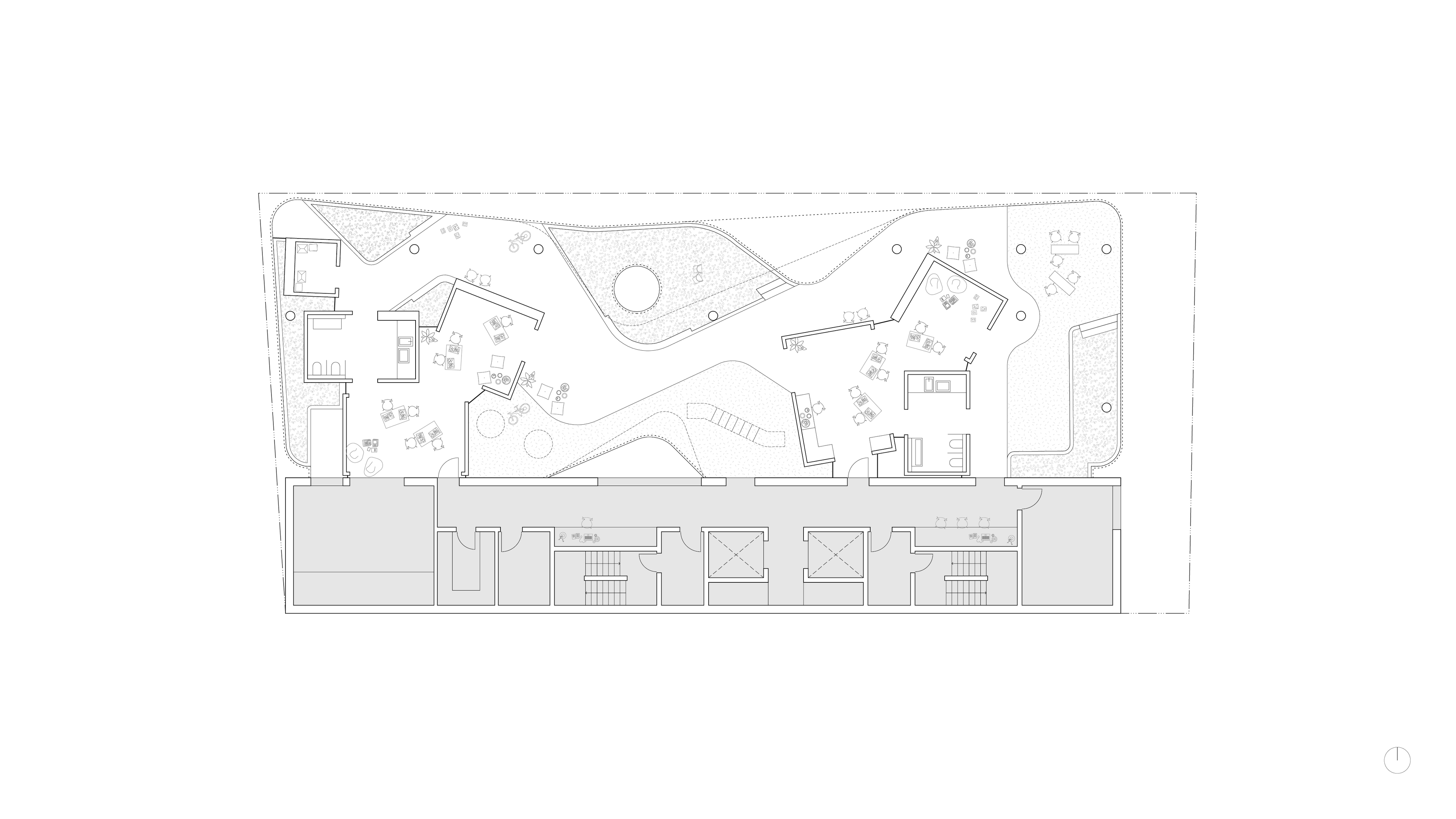
The Huntley St Early Learning Centre is a multi-level childcare over 6 levels, accommodating more than 100 children from 0-5yrs in age, and also contains indoor and outdoor play, a roof garden play-space and ground level parking.
The proposal is set within a precinct of Alexandria undergoing significant urban change. The site is adjacent to a Water Board pumphouse, other former industrial structures, and renewal projects including product design business-parks and destination cafe precincts. The area is being transformed to accommodate the population growth founded through apartment projects in adjacent Erskineville, Alexandria, Sydney Park and St. Peters.
Streetscape Elevations
The design places all servicing elements into a tightly designed masonry core, allowing all indoor and outdoor play areas to be located within a series of freeform platforms designed to maximise natural light between levels.
Credits
Team
Andrew Burges, Louise Lovmand, Eric Ye, Regan Ching, Charles Choi

















